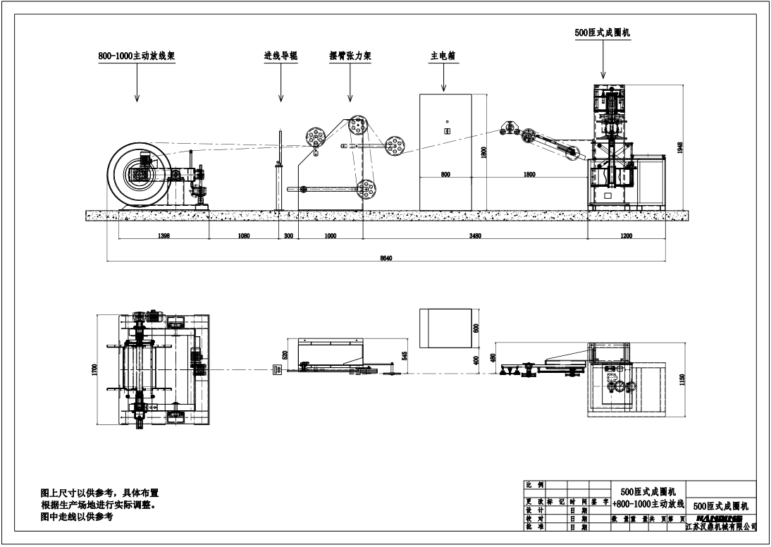
分类
1. 本机专供局域网电缆(即5类、超5类、6类、7类电缆成圈之用)。质量符合国际先进包装技术要求,纸匣包装,不用线盘,堆放方便 自由放线,不会扭曲,不会打结,使用方便,随拉随放,不拉不放 ,微机控制,自动定长,尺码正确
2. 规格:
成圈线径: | 1.8~8.0mm(软线缆) |
成圈内径: | 150~250mm |
成圈外径: | 最大500mm |
收圈长度: | 100~1000米 |
成圈主轴转速: | 最大250转/分 无级调速 |
收卷电机功率: | 2.2KW 直流电机 |
放线盘尺寸: | Ø1000外径ר500筒径×750外宽×630内宽×80轴孔(mm) |
放线架电机功率: | 3.5KW |
放线盘升降: | 电动丝杆升降 |
机器操作方向: | 自左到右 |
安装外形尺寸: | 6050×1620×2060(mm) |
全机重量: | 约2T |
Layout:

